
24小時服務熱線:135-0317-6066
Product display
Hot News
Contact Us
河北省獻縣滄恒環保設備廠
聯系人:王經理
電 話:0317-4641055
手 機:135-0317-6066
郵 箱:cangheng@qq.com
地 址:獻縣陳莊鎮經濟開發區



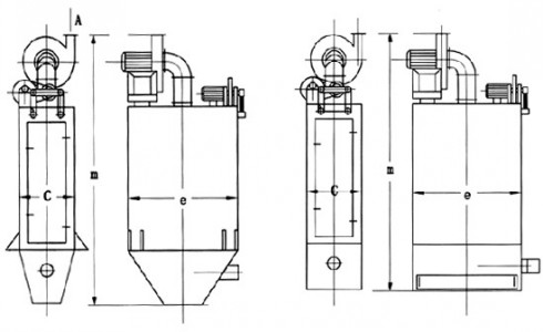
一、簡介
HD系列單機布袋除塵器設備是專為水泥廠庫頂、庫底,皮帶輸送及局部塵源除塵而設計的。也可以用于其它行業的局部塵源除塵用,具有體積小處理風量大,結構緊湊,使用方便可靠等優點,從除塵設備上清除下來的粉塵可直接排入倉內,亦可直接落在皮帶上,含塵氣體由除塵器下部進入除塵器,經濾袋過濾后,清潔空氣由引風機排出。除塵器工作一段時間后,濾袋上的粉塵逐漸斬增多致使使濾袋阻力上升,需要進行清灰,清灰完畢后,除塵器又正常進行工作。
二、工作原理
含塵氣體由除塵器入口進入箱體,通過濾袋進行過濾,粉塵被留在濾袋內表面,凈化后的氣體通過除塵濾袋進入風機,由風機吸入直接排入室內(亦可以接管排到室外)。

隨過濾時間的增加,濾袋內表面粘附的粉塵也不斷增加,濾袋阻力隨之上升,從而影響除塵效果,采用自控清灰機構進行定時搖振清灰或手控清灰機構,停機后自動搖振數十秒,使粘在濾袋內表面的粉塵抖落下來,粉塵落到灰斗,抽屜或直接落到輸送皮帶上。
三、用途范圍
本系列產品產品廣泛用于水泥行業外,還可用于鑄造工業、陶瓷工業、玻璃工業、砂輪制造、化工制品、機械加工等行業的除塵。該產品對比重較大的金屬切削,鑄造用砂等和中等比重的粉塵,如水泥、陶瓷原料粉塵、顏料、膠木粉、塑料粉等,以及比重較輕的木工加工等粉塵均有良好除塵效果,排放濃度保證達到國家排放要求。
四、技術性能
| 規格型號 性能 | HD8924 (ABC) | HD8923 (ABC) | HD8948 (ABC) | HD8956 (ABC) | HD8964 (ABC) | HD8964L (ABC) | HD8980 (ABC) |
處理風量(m3/h) | 1000-1500 | 1500-2000 | 2000-3000 | 3000-3480 | 3480-4200 | 4200-5200 | 5200-6000 |
除塵器阻力(Pa) | 1200 | 1200 | 1200 | 1200 | 1200 | 1200 | 1200 |
過濾面積(m2) | 10 | 14.48 | 20 | 25 | 29.0 | 35 | 40 |
過濾風速(m/min) | < 2.5 | ||||||
除塵效率(%) | > 99.9 | ||||||
風機功率(kw) | 3 | 3 | 5.5 | 5.5 | 835 | 8.5 | 11.0 |
清灰電機功率(kw) | 0.25 | 0.25 | 0.25 | 0.37 | 0.37 | 0.37 | 0.37 |
風機電機型號 | Y9L00-2 | Y100L-2 | Y232S1-2 | Y132S1-2 | Y132S2-2 | Y132S2-2 | Y169M1-2 |
清灰電機型號 | AQ27114 | AQ27114 | AQ27124 | AQ2-7124 | AQ2-7124 | AQ27124 | Y801-4 |
A型重量kg | 680 | 756 | 893 | 987 | 1103 | 1986 | 1210 |
備注:以上所有技術參數僅供參考,如有更改不另行通知。
五、使用說明
1、HD系列單機布袋除塵器設備,安裝在產生粉塵的機械設備鄰近處,并由用戶按照除塵機組上進風口尺寸,自行配制金屬或塑料吸塵管道和吸塵罩(亦可在訂貨時與生產廠聯系,代為配制)。
2、機組工作前應檢查檢修門,各法蘭連接處是否密封,以免泄漏,降低除塵效果。
3、該機組電壓為380伏。從機組外部電線接上電源后即可開始使用,初運轉時,應注意風機的轉動方向(如反轉,則只需調換電源接線)。
4、機組電控箱蓋,在工作時不得隨意打開,如需調節清灰時間,或需檢修電路時應停機或切斷電源后進行工作。
5、根據粉塵性質和含塵濃度的大小,調節定時清灰。
6、吸塵罩是保證機組處于最佳狀態的關鍵配件,使用單位應根據加工件的外型尺寸及粉塵的性質、按通,近、封、便設計吸塵罩的原則,制作理想的吸塵罩。
六、維護保養
1、應定期檢查布袋除塵器的情況,如發現破袋、滑袋,應及時更換濾袋,應根據實際情況定期更換濾袋,一般每年更換一次濾袋。
2、一般隔六個月,要檢修一次清灰機構。
3、易損件可電報,信函或與加工廠聯系。
七、注意事項
1、本機組不適用于潮濕和帶有腐蝕性的氣體,不應長時間處理高于120℃的廢氣。如需用于處理高溫廢氣,請告知制造廠家訂做高溫濾布。
2、機組在開,停及運轉過程中,如有異常現象,應立即停止工作,進行檢查修理。
3、停機應按“停止按鈕”使搖振機構工作數十秒,不應直接拉下電源閘刀停機。